Seal Rock
Features
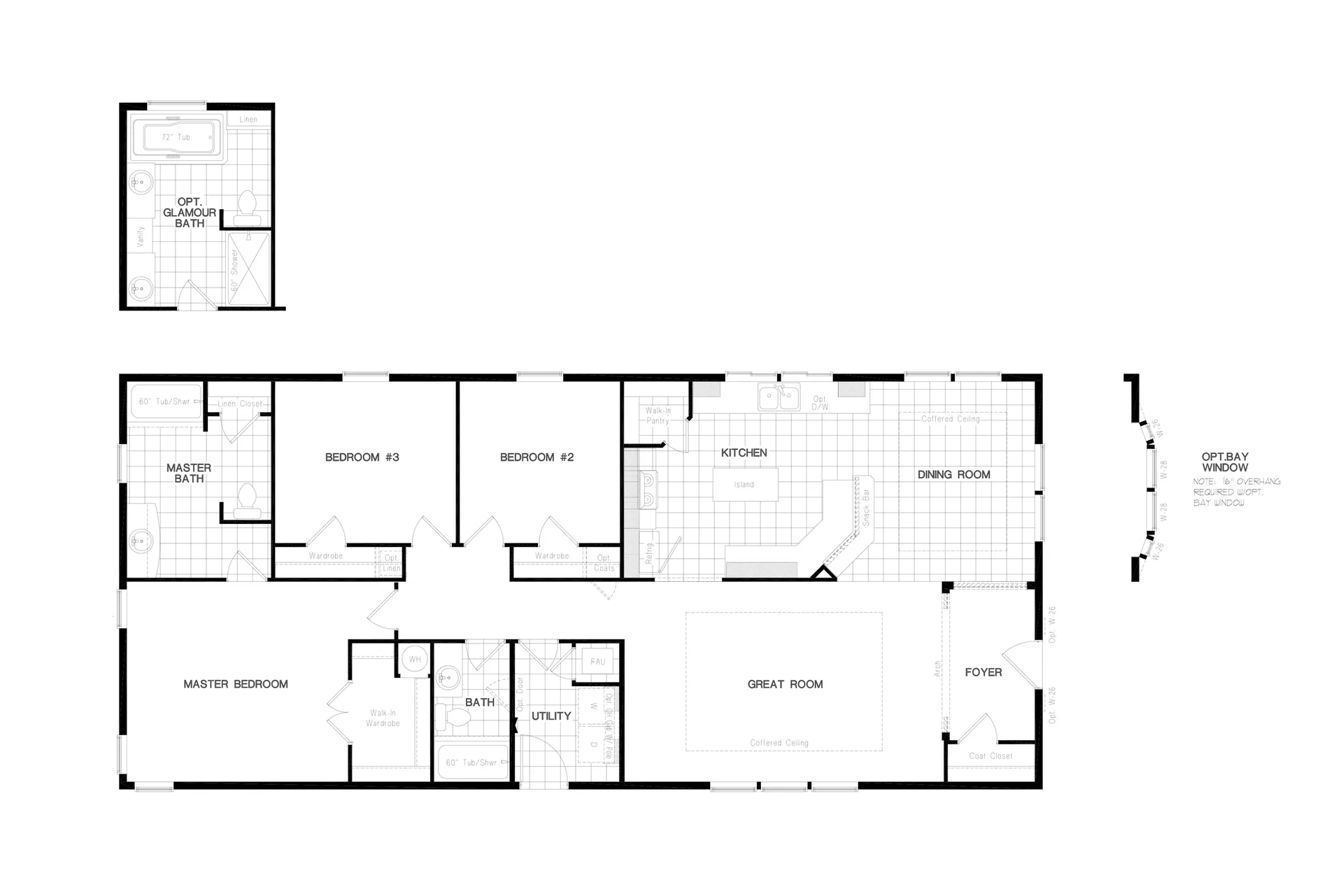
Floor Plan
- IN STOCK
- UPGRADES INCLUDED
Seal Rock
3 beds
2 baths
1,620 sq. ft.
Features
Breakfast Bar
Dining Room
Foyer
Kitchen Island
Pantry
Utility Room
6:12 Roof Pitch
CemPlank Lap Siding
Craftsman Style Porch
Bay Window
Country Hutch Cabinetry
Tile Shower w/ Bench
Barn Door Entry into Bath
Smokey Mtn. Grey Cabs
Floor Plan

We accept trades!
Find a new home you love? Contact us for more information about our trade-in requirements and to schedule your free trade evaluation.
Learn More






















